
Notifier AIM-200 Addressable Intelligent Module

Installing the AIM-200
Complete the following steps to install the AIM-200 onto the CHS-4 Chassis.
- Mount the AIM-200 to a CHS-4 Chassis.
- Insert the tab on the bottom of the AIM-200 into the slot on the bottom of the CHS-4.
- Fasten the AIM-200 to the top of the CHS-4 using the two captive screws in the top corners of the module. Refer to Figure 3-1.
- Connect the ribbon cable. See Figure 3-2.
Note: If point annunciation (192 intelligent AIM-200 points and 56 standard system circuits) If a single AIM-200 is desired, the AIM-200 must be mounted in the second slot of the first chassis (directly to the right of the CPU). This annunciation option must also be selected in system programming.
Connecting the Alarm Bus Cable
Connect the alarm bus cable by following the steps below. Use the alarm bus cable (Part No. 71033) included with the AIM-200.
- Remove the 2-pin connector on one end of the cable.
- Separate and strip the wires, exposing about half an inch of bare wire.
- Connect wires to Terminals 14 and 15 on the CPU.
- Connect the other end of the trouble cable to the leftmost 2-pin terminal on the bottom left-hand corner of the AIM-200. If additional AIM-200s are employed, see Figure 3-3.



Wiring the Communications Loop Circuit
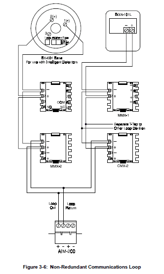
The AIM-200 communicates through a communications loop with intelligent and addressable initiating, monitoring, and control devices. The System 5000 can support up to ten communication loops, each controlled by an AIM-200 module. The communications loops can be wired as non-redundant (Figure 3-6), redundant (Figure 3-7), or isolated redundant (Figure 3-8).
Isolator Modules
Isolator modules (ISO-X) permit a zone of detectors and modules to be electrically isolated from the remainder of the communications loop, allowing critical loop components to function in the event of a circuit fault (see Figures 3 8 and 3-12).
Monitor Modules
Addressable monitor modules (MMX-1, MMX-2, and MMX-101) allow the AIM-200 to monitor entire circuits of conventional normally open contacts, alarm initiating devices, manual pull stations, 4-wire smoke detectors, heat detectors, and water flow and supervisory devices (Figures 3-13A and 3-14A). A type of monitor module, the addressable BGX-101L, provides point annunciation of manual pull stations (Figure 3-18).
Control Modules
Through addressable control modules (CMX-2), the System 5000 can selectively activate notification appliance circuits or Form-C output relays (see Figures 3-15 through 3-17).
Intelligent Detectors
Through the communications loop, the AIM-200 communicates with intelligent ionization, photoelectric, and thermal detectors (Figure 3-19).
Loop Capacity
The capacity of each AIM-200 includes up to 99 intelligent detectors and an additional combination of up to 99 addressable pull stations, control modules, and monitor modules. One to ten AIM-200s can be employed, depending on system requirements.
Notes
- The communications loop is supervised and power-limited.
- The maximum loop length is 10,000 feet (total twisted pair length).
- Maximum loop voltage: 27.6 VDC.
- Maximum loop current: 200 mA (short circuit) 100 mA (normal operation)
- Maximum loop resistance: 40 ohms.
- Refer to the proper installation drawing supplied with each communications loop appliance.
| Fault Condition | ||||||
| Single | Single | Loop has | Loop | Loop | Loop | Commun |
| Open on | Ground | Been | Shorted | Shorted | Opened | Loss |
| Loop | on Loop | Shorted | and | and | and | with |
| Opened | Grounded | Grounded | Control | |||
| Panel | ||||||
| Non-redundant (2-Wire) Loop Operation | ||||||
| Trouble | Trouble | Trouble | Trouble | Trouble | Trouble | Trouble |
| (Note 1) | with | |||||
| Alarm | ||||||
| Capability | ||||||
| (Note 2) | ||||||
| Redundant (4-Wire) Loop Operation | ||||||
| Trouble | Trouble | Trouble | Trouble | Trouble | Trouble | Trouble |
| with | with | with Alarm | ||||
| Alarm | Alarm | Capability | ||||
| Capability | Capability | |||||
| Isolated Redundant (4-Wire) Loop Operation (Note 3) | ||||||
| Trouble | Trouble | Trouble | Trouble | Trouble | Trouble | Trouble |
| with | with | with | with Alarm | with Alarm | ||
| Alarm | Alarm | Alarm | Capability | Capability | ||
| Capability | Capability | Capability | ||||
Figure 3-4: AIM-200 Wiring Requirements Non-Redundant Circuit

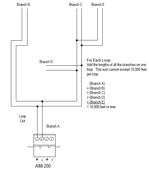
Branch Resistance
Short the termination point of one branch at a time and measure DC resistance from the beginning of the loop to the end of that particular branch. The total DC resistance from the panel to the branch end cannot exceed 40 ohms. Repeat this procedure for all remaining branches.

The total length of the communications loop pair cannot exceed 10,000 feet (measured from the control panel out, and back to the control panel). The DC resistance of the communications loop pair cannot exceed 40 ohms. This measurement may be obtained by disconnecting the loop out and returning at the control panel, shorting the two leads of the communications loop return together, and metering the loop out.


Isolated-Redundant Circuit
Flanking each communications loop device with a pair of ISO-X fault isolator modules protects each device from short circuit faults that may occur on other devices. For example, a fault in Zone 2 will not affect Zones 1 and 3. The isolator modules on either side of Zone 2 will open the loop. Zone 1 will still operate from power on loop out and Zone 3 will operate from loop return.
Since the system will no longer be able to communicate with Zone 2, a trouble signal(s) will be generated for that device. This circuit is a variation of the redundant circuit, therefore, no T-tapping or branching is allowed. The ratings and characteristics are the same as for the redundant circuit.
Shield Termination in No Conduit
Do not allow the shield drain wire to enter the control panel cabinet. Connect the drain wire to the outside of the cabinet via a BX-type connector.
Shield Termination in Full Conduit
The shield drain wire must be connected to the loop’s negative (-) side. Do not allow the shield drain wire or the shield foil is used to touch the control panel cabinet.
Shield Termination in Partial Conduit
Do not allow the shield drain wire to enter the control panel cabinet or the conduit. Connect the drain wire to the termination point of the conduit run (such as a single-gang box as illustrated in Figure 3-11). The conduit cannot be longer than 20 feet.
Figure 3-11: Shield Termination in Partial Conduit
The Isolator Module
The loop isolator module (ISO-X) is used to protect critical elements of the communications loop from faults on other branches or sections of the loop. The ISO-X continuously monitors the circuit connected to Terminals 3 (-) and 4 (+). Upon power-up, an integral relay is latched on. The ISO-X periodically pulses the coil of this relay. A short circuit on the loop resets the relay.
The ISO-X sees this short and disconnects the faulted branch by opening the positive side of the loop (Terminal 4). This effectively isolates the faulted branch from the remainder of the loop. Once the fault is removed, the ISO-X automatically reapplies power to the communications loop branch. Figure 3-12 illustrates the use of an ISO-X on a
non-redundant communications loop. For employing ISO-Xs on a redundant or isolated-redundant communications loop, see Figure 3-8.
Shorts on this branch of an isolated non-redundant communications loop will be isolated from all devices installed both upstream of the ISO-X and on the continuation of the loop (shown as a dotted line).
The MMX-1 Monitor Module
The MMX-1 monitor module is an addressable module that monitors normally open contacts, shorting type alarm initiating devices. The supervised MMX-1 circuit can be wired as an NFPA Style B or Style D initiating device circuit. There is no limit to the number of contact-type devices installed on a monitor module circuit. Refer to Figures 3-13A and 3-14A for MMX-1 wiring diagrams.
Communications Loop Connections
Connect the communications loop to MMX-1 Terminals 1(-) and 2 (+). The MMX-1 occupies one module address on the loop. Set the rotary switches on the MMX-1 to the particular loop address required.
NFPA Style B Initiating Device Circuit
Connect the normally open contacts of the alarm-initiating devices to a single two-wire circuit. This circuit cannot be T-tapped or branched in any fashion and must be terminated across the last device by a listed 47K, 1/2-watt ELR (Part No. A2143-00, supplied with module). Connect the circuit to MMX-1 Terminals 6 (-) and 7 (+).
NFPA Style D Initiating Device Circuit
Connect the normally open contacts of the alarm-initiating devices to a single four-wire circuit. This circuit cannot be T-Tapped or branched in any fashion. No external ELR is required for Style D wiring. Connect the four-wire circuit to MMX-1 Terminals 6 (-) and 9 (-), then 7 (+) and 8 (+). The maximum initiating device circuit resistance is 20 ohms.
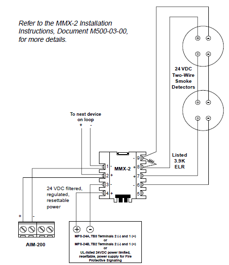
The MMX-2 Monitor Module

The MMX-2 monitor module is an addressable module that monitors conventional two-wire smoke detectors. The supervised MMX-2 circuit can be wired as an NFPA Style B or Style D initiating device circuit. Refer to the Device Compatibility Document for the type and number of detectors the MMX-2 will support. Refer to Figures 3-13B and 3-14B for MMX-2 wiring diagrams.
Communications Loop Connections
Connect the communications loop to MMX-2 Terminals 1(-) and 2 (+). The MMX-2 occupies one module address on the loop. Set the rotary switches on the MMX-2 to the particular loop address required.
NFPA Style B Initiating Device Circuit
Connect the alarm-initiating devices to a single two-wire circuit. This circuit cannot be T-tapped or branched in any fashion and must be terminated across the last device by a listed 3.9K ELR. Connect the circuit to MMX-2 Terminals 6 (-) and 7 (+). The maximum initiating device circuit resistance is 25 ohms.
NFPA Style D Initiating Device Circuit
Connect the alarm-initiating devices to a single four-wire circuit. This circuit cannot be T-tapped or branched in any fashion. No external ELR is required for Style D wiring. Connect the four-wire circuit to MMX-2 Terminals 6 (-) and 9 (-), then 7 (+) and 8 (+). The maximum initiating device circuit resistance is 25 ohms.
Power
The MMX-2 requires a connection of 24 VDC filtered, power limited, regulated, and resettable power on terminals 3 (-) and 4(+). The maximum standby current for two-wire detectors is 2.4 mA. The maximum alarm current is 90mA.
The MMX-101 Monitor Module

The MMX-101 monitor module is an addressable module that is functionally and electrically identical to an MMX-1 monitor module (Style B circuits only), but offered in a smaller package for mounting directly in the electrical box of the contact-type device being monitored.
NFPA Style B Initiating Device Circuit
Terminate with an A2143-00 ELR (N-ELR in Canada).
MMX-1 and MMX-101 Monitor Module Technical Notes
- The initiating device circuit is supervised and current-limited to 210 microamps @ 24 VDC (nominal).
- Initiating device circuit provides the following services (do not mix):
- a) Fire alarm service
- b) Automatic/manual waterflow alarm service with normally open contact devices
- c) Sprinkler supervision with normally open contact devices
- Maximum loop resistance due to wiring is 65 ohms.

Figure 3-13B: NFPA Style B Initiating Device Circuit

The Control Module
The CMX-2 control module is an addressable module that supervises and switches power to a notification appliance circuit. The CMX-2 circuit can be wired as an NFPA Style Y or Style Z notification appliance circuit. Alternately, the CMX-2 can be employed as a Form-C control relay.
Communications Loop Connections
Connect the communications loop to CMX-2 Terminals 1(-) and 2 (+). The CMX-2 occupies one module address on the loop. Set the rotary switches on the CMX-2 to the particular loop address required.
NFPA Style Y Notification Appliance Circuit
Connect polarized alarm notification appliances to a single 2-wire circuit. This circuit cannot be T-tapped or branched in any fashion and must be terminated across the last device by a 47K, 1/2-watt ELR (Part No. A2143-00). Connect the circuit to CMX-2 Terminals 6 (+) and 7 (-). See Figure 3-16.
NFPA Style Z Notification Appliance Circuit
Connect polarized alarm notification appliances to a single two-wire circuit. This circuit cannot be T-tapped or branched in any fashion. No external ELR is required for Style Z wiring. Connect the 4-wire circuit to CMX-2 Terminals 6 (+) and 9 (+), then 7 (-) and 8 (-).M See Figure 3-17.
Notification Appliance Power
Connect notification appliance power to CMX-2 Terminal 3 (common) and Terminal 4 (+ 24 VDC). This power must be provided by a UL-listed power-limited supply and must be supervised by a UL-listed power supervision relay, wired as illustrated in Figures 3-16 or 3-17.
Break Tabs
To configure a CMX-2 as a Form-C relay, the two tabs must be broken off of the module. Use a pair of needle-nose pliers to break off each tab.
Communications Loop Connections
Connect the communications loop to CMX-2 Terminals 1(-) and 2 (+). The CMX-2 occupies one module address on the loop. Set the rotary switches on the CMX-2 to the particular loop address required.
Contact Connections
Wire the common and the normally open or normally closed contacts to the CMX-2 as needed.
Contact Ratings
- Resistive: 2 amps @ 30 VDC
- Inductive: 1 amp @ 30 VDC (0.6 pf) 0.3 amps @ 120 VDC (0.35 pf) Contacts are not rated for pilot duty or motor loads.
The Addressable Manual Pull Station
BGX-101L Installation
The BGX-101L is an addressable manual pull station with a key-lock reset feature.
- Connect the communications loop to BGX-101L red wire (+) and black wire (-). If additional devices are to be connected to the SLC loop after the BGX-101L, wire-nut the continuance of the loop to the red and black wires.
- The BGX-101L is factory preset with address “00.” Set the address for the pull station by using a screwdriver to turn the rotary address switches on the back of the unit to the appropriate settings.

Figure 3-18: Wiring Addressable Manual Pull Stations
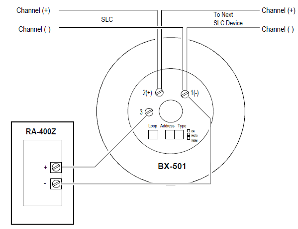
The Intelligent Detector
The BX-501 and B501 bases provide the connection between the AIM-200 communications loop and SDX-551 (751), CPX-551 (751), and FDX-551 intelligent detectors.
Installation
- Connect the communications loop to Terminal 1(-) and Terminal 2(+) on the BX-501.
- If employing an RA400Z remote LED annunciator, connect the RA400Z positive terminal to BX-501 Terminal 3 and the negative Terminal to BX-501 Terminal 1.
- Before installing the appropriate intelligent detector head, set the detector’s address on the head with a small slotted screwdriver. Mark this address on the base and the head.

Figure 3-19: Wiring the BX-501 (B501) Detector Base
Section Four: Programming the AIM-200
Programming the AIM-200 involves two modes of operation: Auto-Program, (password 231-1332) and Program Edit (password 231-3112). A third function, Display Status, allows the programmer to review the entire AIM-200 program. Program Clear (password 231-5678), allows the clearing of an existing program from non-volatile memory.
The Programming Display
Device Type
Green LEDs indicate whether the device is a detector or a module.
Device
The device’s type and address are alternately displayed on the 2-digit 7-segment display.
| Left Digit | Right Digit |
| P = Photo Detector | Blank = Normal Sensitivity (for detectors), or Indicating Circuit Selected (for CMXs) |
| I = Ion Detector | L = Low Sensitivity (detectors only) |
| H = Heat Detector | H = High Sensitivity (detectors only) |
| G = Monitor Module or Pull Station | d = Disabled |
| C = Control Module | O = Form-C Selected (CMXs) |
| E = No response from a device (the AIM-200 is programmed for a device that is in trouble or not physically installed on the loop). |
Table 4-1: Auto-Programming the AIM-200
| Programmer | System 5000 |
| 1. Insert the PK-1 Programming Key. | CPU-5000 will register a System Trouble condition. Red alarm LEDs on Zones 1, 2, and 3 and the DISPLAY STATUS and ENTER LEDs will flash at a faster rate.
EP will be displayed for “Enter Password.” |
| 2. Acknowledge the System Trouble (if desired). | The CPU-5000 piezo sounder will silence. |
| 3. Enter the Auto-Program password: 231-1332. Push ENTER. | The LEDs illuminated on the AIM-200 will flash at a slower rate. All LEDs will be turned off RP will be flashing for “Auto-Program.” The AIM-200 polls all 198 possible device addresses. It stores the address and type of each device found installed on the loop (this process could take several seconds). It then compares each device against the old information stored in its memory. If a mismatch is found between the devices installed on the loop and the information in memory, information about the new device is displayed. |
| 4. The device information can be changed by the AIM-200 programmer. | See 4.1 The Programming Display. |
| 5. You may accept the new device by pressing ENTER, or reject the device and retain the information that was in memory by pressing SKIP. | The AIM-200 proceeds to the next mismatch and repeats the process. After all mismatches are accepted or rejected, the AIM-200 displays a count of the number of programmed detectors, alternating with a count of programmed modules. |
| 6. You may advance to Program Edit mode by pressing ENTER; return to Auto-Program mode by pressing SKIP, or resume normal operation by removing the PK-1 key. |
Table 4-2: Editing the AIM-200 Memory
| Programmer | System 5000 |
| 1. Insert the PK-1 Programming Key. | CPU-5000 will register a System Trouble condition. Red alarm LEDs on Zones 1, 2, and 3 and the DISPLAY STATUS and ENTER LEDs will flash at a faster rate.
EP will be displayed for “Enter Password.” |
| 2. Acknowledge the System Trouble (if desired). | The CPU-5000 piezo sounder will silence. |
| 3. Enter the Auto-Program password: 231-3112. | The LEDs illuminated on the AIM-200 will flash at a slower rate. |
| 4. Push ENTER. | The AIM-200 will alternately display the address and device of the lowest-addressed detector. |
| 5 The STEP-FORWARD and STEP-REVERSE switches allow the programmer to change detector status (high, normal, low, or disabled) and module status (Form-C, notification circuit, or disabled).
To store newly edited information, press the ENTER switch. To leave a device unchanged, press the SKIP switch. The AIM-200 will advance to the next address
Note: Holding the SKIP key switch will cause the AIM-200 to advance through successive addresses quickly (10 per second). | The AIM-200 will continue to alternately display the address and device type during editing.
The AIM-200 steps through all detectors and then all modules installed on the loop. After the last module is edited, the AIM-200 will begin again at the first detector on the loop. |
| 6. After all desired changes have been made, remove the programming key. | The AIM-200 will return to normal operation. |
Program LED Latch
Early version Notifier analog detectors and modules can turn on up to six LEDs on a single signaling line circuit. Notifier “R4” devices (Release 4-1-91) can turn on up to 99 detector LEDs plus five module LEDs.
| Programmer | System 5000 |
| 1. Insert the PK-1 Programming Key. | CPU-5000 will register a System Trouble condition. Red alarm LEDs on Zones 1, 2, and 3 and the DISPLAY STATUS and ENTER LEDs will flash at a faster rate.
EP will be displayed for “Enter Password.” |
| 2. Acknowledge the System Trouble (if desired). | The CPU-5000 piezo sounder will silence. |
| 3. Enter the Auto-Program password: 231-1234. | The LEDs illuminated on the AIM-200 will flash at a slower rate. |
| 4. Push ENTER. . .
Push SKIP. . . | To enable the max LED mode.
To disable the max LED mode. |
| 5 After all desired changes have been made, remove the Programming Key. | The AIM-200 will return to normal operation. |
Program Clear
The Program Clear function allows the programmer to clear an existing program from AIM-200 memory. After clearing memory, the AIM-200 must be completely reprogrammed, beginning with Auto-Program.
Table 4-3: Clearing AIM-200 Memory
| Programmer | System 5000 |
| 1. Insert the PK-1 Programming Key. | CPU-5000 will register a System Trouble condition.
Red alarm LEDs on Zones 1, 2, and 3 and the DISPLAY STATUS and ENTER LEDs will flash at a faster rate. EP will be displayed for “Enter Password” |
| 2. Acknowledge the System Trouble (if desired). | The CPU-5000 piezo-sounder will silence. |
| 3. Enter the Program Clear password: 231-5678.
Push ENTER. | The LEDs illuminated on the AIM-200 will flash at a slower rate.
P[ will be displayed for “Program Clear.” |
| 4. You can now clear AIM-200 memory by pressing ENTER. Pressing SKIP or removing the programming key aborts Program Clear. | After the AIM-200 erases stored information,
EP will be displayed for “Enter Password”. |
For more manuals by Notifier visit, ManualsLibraryy
Notifier AIM-200 Addressable Intelligent Module-FAQs
What is the Notifier AIM-200 used for?
The AIM-200 is an addressable intelligent module used in fire alarm systems to monitor and control input devices such as switches and sensors.
How do I install the AIM-200 module?
Mount the module securely in a designated enclosure, connect the input and output devices, and ensure proper wiring to the fire alarm control panel as per the manual’s guidelines.
How does the AIM-200 communicate with the fire alarm system?
The module uses addressable technology to communicate with the fire alarm control panel, transmitting input signals and status updates.
Can I assign an address to the AIM-200?
Yes, the module requires a unique address that can be configured using the address programming tool provided by Notifier.
What devices can I connect to the AIM-200?
The AIM-200 supports input devices like switches, sensors, and other monitoring equipment compatible with fire alarm systems.
How do I troubleshoot the AIM-200 module?
Check for proper wiring, verify the module’s address configuration, and ensure compatibility with connected devices. Consult the manual for detailed troubleshooting steps.
Is the AIM-200 compatible with all Notifier systems?
The module is designed to work with specific Notifier fire alarm control panels. Refer to the user manual or contact support for compatibility details.
What are the power requirements for the AIM-200?
The module is powered by the fire alarm control panel through the signaling line circuit (SLC). Check the manual for specific power specifications.
How do I test the functionality of the AIM-200?
Perform a system test from the fire alarm control panel to ensure the module is communicating correctly and monitoring the connected devices.
Where can I get replacement parts for the AIM-200?
Replacement parts and accessories can be obtained from authorized Notifier distributors or service centers. Always use genuine parts for reliability.






