
Adexa EasyQuality Oven Mod EQ-SPE907 Controls

TECHNICAL SPECIFICATIONS:
- The heating system is housed on the rear side of the cooking chamber
- Watertight cooking chamber, with rounded corners, external welds, made of stainless steel AISI 304
- AISI 430 stainless steel frame
- Incoloy 800 stainless steel heating elements for heating the cooking chamber.
- An electric heating system in the cooking chamber.
- Thermal insulation of the cooking chamber is made of ceramic fibre material
- Stainless steel cooking chamber fans
- Ventilation with autoreverse
- Available with a reverse door
- A door with double glazing that can be opened for cleaning
- Ergonomic handle
- An interlocking gasket on the cooking chamber
- Magnetic sensor for blocking ventilation when the door is opened
- Halogen cooking chamber lighting
CONTROL BOARD AND FUNCTIONS:
- Programmable control panel
- Cooking modes: convection, combi with steam regulation
- Automatic programmes (3 stages + preheating)
Description
- ELECTRIC OVEN
- 7 LEVELS GN1/1-600×400
- CROSSWISE
- Approx. 70 PORTIONS
- PROGRAMMABLE CONTROL BOARD
- CONVECTION
- COMBI WITH STEAM REGULATION
- AUTOMATIC PROGRAMS
- Electromechanical discharge valve
- Ventilation with autoreverse
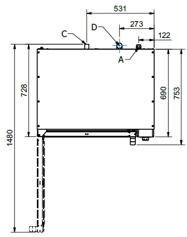
EASY QUALITY EQ-SPE907-HS

- (A) Electrical connection
- (B) Water inlet ∅ 3/4 gas
- (C) Water discharge
- (D) Air Release Valve
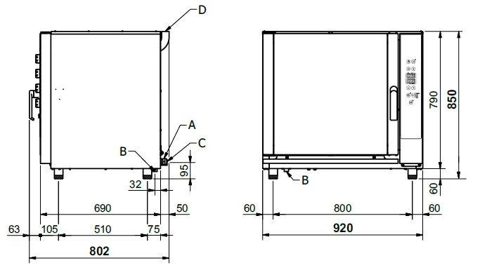
Control Board Description
- (A) ON/OFF button
- (B) Temperature display
- (C) Time display
- (D) Cooking chamber temperature
- (F) Time selection
- (G) Program’s phases
- (H) Steam quantity selection
- (M) Increase value button
- (N) Reduce value bution
- (P) Automatic programs
- (S) Start/stop button
- (V) Release valve opening
For more Manuals by Adexa, visit ManualsLibraryy
Adexa EasyQuality Oven Mod EQ-SPE907 Controls-FAQs
How do I clean my Adexa EQ-SPE907 oven?
Turn off the power and unplug the oven. Open the door and let the interior cool for about 10 minutes. Wipe the inside surfaces with a damp cloth. Avoid using harsh chemicals or spraying water directly inside.
How do I clean burnt or black residue from the bottom of the oven?
Sprinkle baking soda on the burnt area, mist with water (or a 3:1 water–vinegar mix), and let it sit for 15–20 minutes. Wipe with a damp sponge once the residue softens.
Can I use vinegar to clean the Adexa oven?
Yes, a paste made of vinegar, baking soda, and water can help remove stubborn stains. Apply, scrub gently, and wipe clean.
How do I clean the inside glass of the Adexa oven door?
Use a soft cloth dipped in warm water mixed with mild detergent. Avoid abrasive pads that may scratch the glass.
Does the Adexa EQ-SPE907 have a self-clean function?
This model typically uses manual cleaning. However, general self-clean steps (if applicable) include removing accessories, closing the door, starting the self-clean cycle, and wiping the ash afterward once cooled.
Can I open the oven door during a self-clean cycle?
No. During high-temperature self-cleaning, the door locks automatically for safety. It will unlock only when the oven cools down.
How long does a typical self-clean cycle take?
Most self-cleaning ovens take 1.5 to 3 hours, depending on the level of soil and model type. Steam-cleaning cycles (if present) take under an hour.
How will I know when the oven is done self-cleaning?
The oven will turn off automatically at the end of the cycle. The door will remain locked until the temperature drops to a safe level.
Do I need to open windows when using self-clean?
Yes. Self-clean cycles may produce strong odors. Ensure good ventilation for comfort and safety.
Is it safe to leave racks in the oven during a self-clean cycle?
No. High heat can discolor or warp the racks. Remove all racks before starting the self-clean process.


